Basic Information
- MLS # F10487871
- Type Single Family Home
- Subdivision/Complex Bal Harbour Village
- Year Built 2025
- Total Sqft 9,150
- Date Listed 03/02/2025
- Days on Market 250
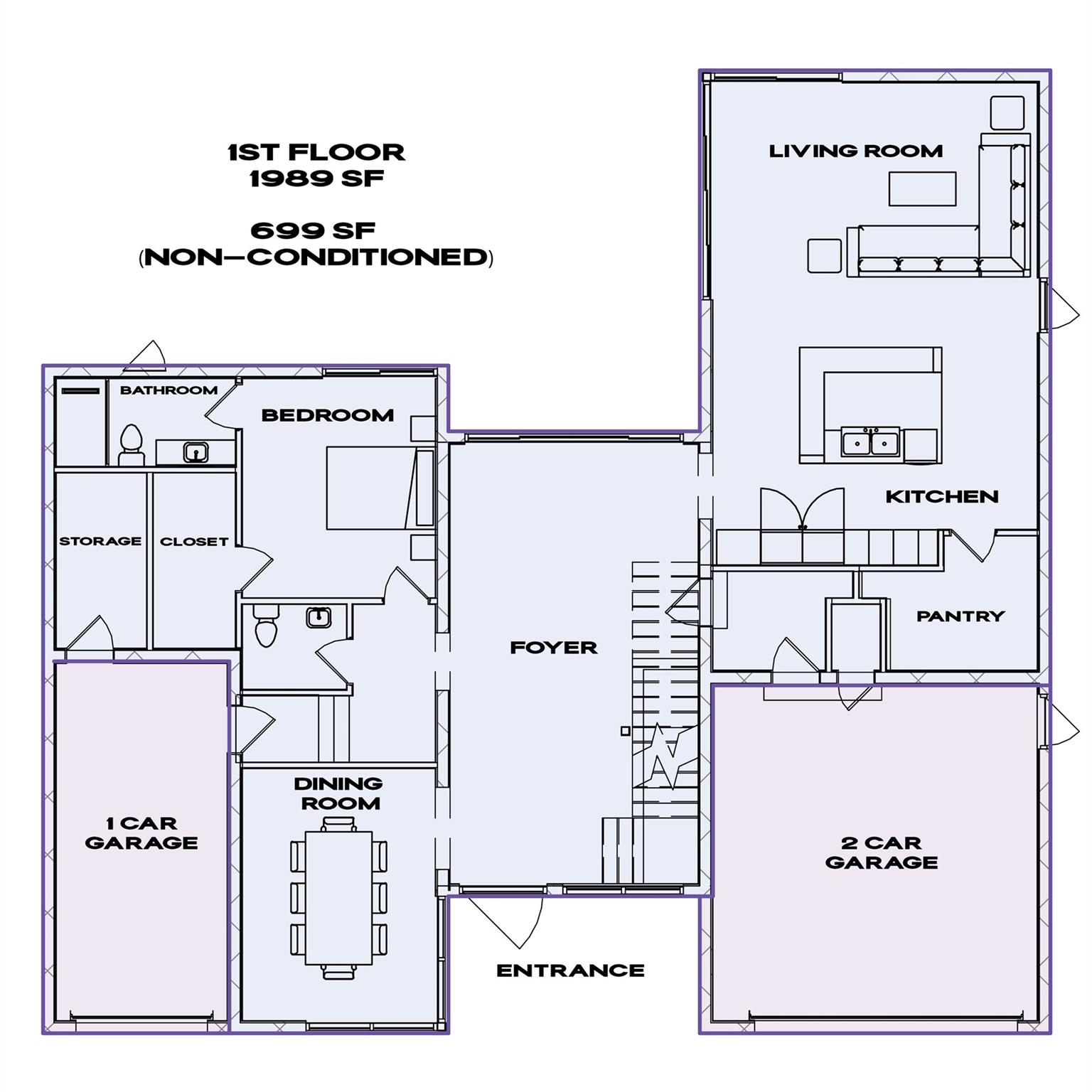
Bal Harbour Village is an exclusive new development nestled within the prestigious Bal Harbour neighborhood. Featuring just seven custom-designed residences, each home has been thoughtfully crafted to meet the highest standards for the most discerning buyer. This breathtaking contemporary custom home showcases exceptional finishes and offers a private retreat designed for ultimate relaxation and effortless everyday living. Designed to delight culinary enthusiasts and entertainers alike, the chef’s kitchen features premium appliances, sleek custom cabinetry, and an expansive layout perfect for hosting. 5 bedrooms 5.5 baths a spacious 3-car garage, a luxurious pool, and so much more, this residence is the perfect blend of modern sophistication and comfort.
Exterior Features
- Waterfront No
- Parking Spaces 3
- Pool Yes
- Parking Description Attached, Driveway, Garage, Garage Door Opener
- Exterior Features Balcony, Fence, Security High Impact Doors, Lighting
Interior Features
- Adjusted Sqft 4,608Sq.Ft
- Interior Features Bedroom On Main Level, First Floor Entry
- Sqft 4,608 Sq.Ft
Property Features
- Aprox. Lot Size 9,150
- Furnished Info No
- Lot Description Sprinklers Automatic, Less Than Quarter Acre
- Short Sale Regular Sale
- HOA Fees N/A
- Subdivision Complex
- Subdivision Info Bal Harbour Village
- Tax Amount $9,127
- Tax Year 2024
1915 NE 22th Ter
Fort Lauderdale, FL 33305Similar Properties For Sale
-
$4,850,0005 Beds6.5 Baths4,770 Sq.Ft2737 NE 18th St, Fort Lauderdale, FL 33305
-
$4,800,0005 Beds5.5 Baths5,000 Sq.Ft3325 NE 18th, Fort Lauderdale, FL 33305
-
$4,500,0005 Beds6.5 Baths5,265 Sq.Ft2120 N Ocean Blvd #VII, Fort Lauderdale, FL 33305
-
$4,395,0005 Beds5.5 Baths4,717 Sq.Ft2500 Middle Riv Dr, Fort Lauderdale, FL 33305
-
$3,999,0005 Beds5.5 Baths5,058 Sq.Ft2600 NE 21st St, Fort Lauderdale, FL 33305
-
$3,995,0003 Beds4 Baths4,060 Sq.Ft1617 N Fort Laud Bch Blvd, Fort Lauderdale, FL 33305
-
$3,900,0005 Beds4 Baths3,583 Sq.Ft2878 NE 26th St, Fort Lauderdale, FL 33305
-
$3,750,0004 Beds4.5 Baths3,755 Sq.Ft2015 NE 4th Ave, Wilton Manors, FL 33305
-
$3,747,0005 Beds5 Baths3,747 Sq.Ft3321 NE 16th Pl, Fort Lauderdale, FL 33305
-
$3,274,0004 Beds4.5 Baths3,722 Sq.Ft1710 Middle Riv Dr, Fort Lauderdale, FL 33305
The multiple listing information is provided by the Miami Association of Realtors® from a copyrighted compilation of listings. The compilation of listings and each individual listing are ©2023-present Miami Association of Realtors®. All Rights Reserved. The information provided is for consumers' personal, noncommercial use and may not be used for any purpose other than to identify prospective properties consumers may be interested in purchasing. All properties are subject to prior sale or withdrawal. All information provided is deemed reliable but is not guaranteed accurate, and should be independently verified. Listing courtesy of: RE/MAX FIRST. tel: (954) 900-2120
Real Estate IDX Powered by: TREMGROUP








